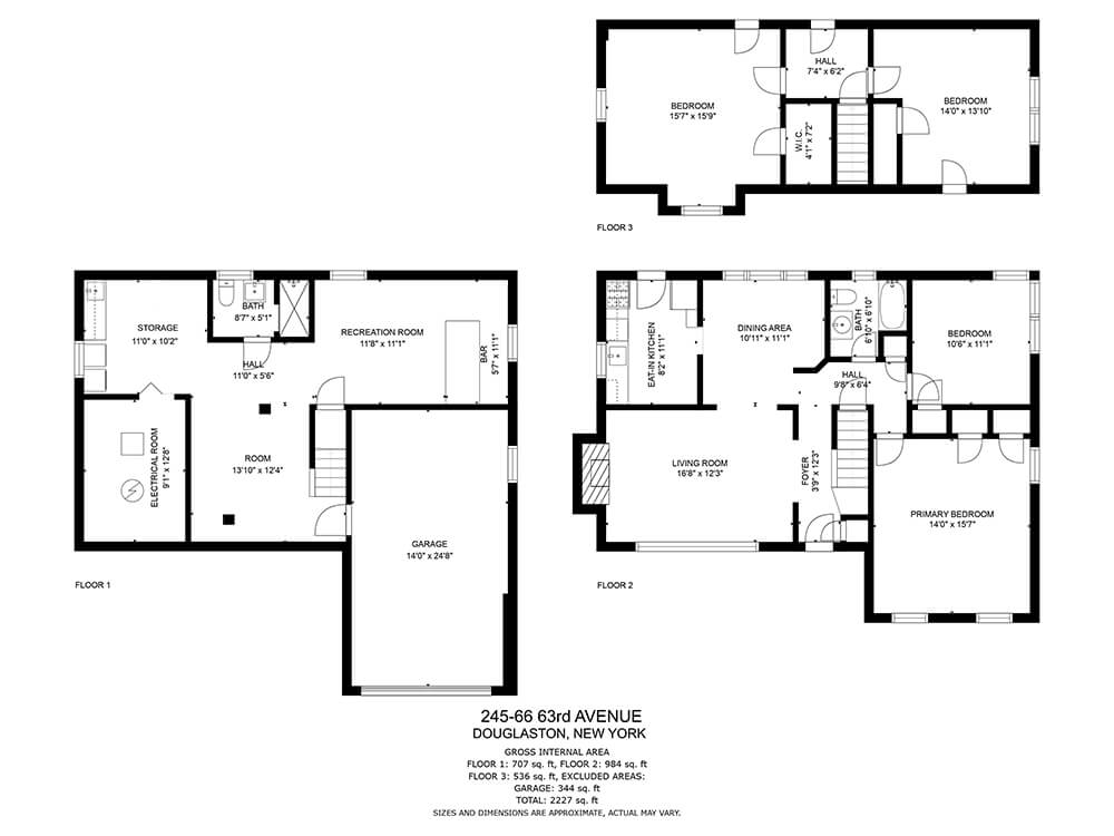
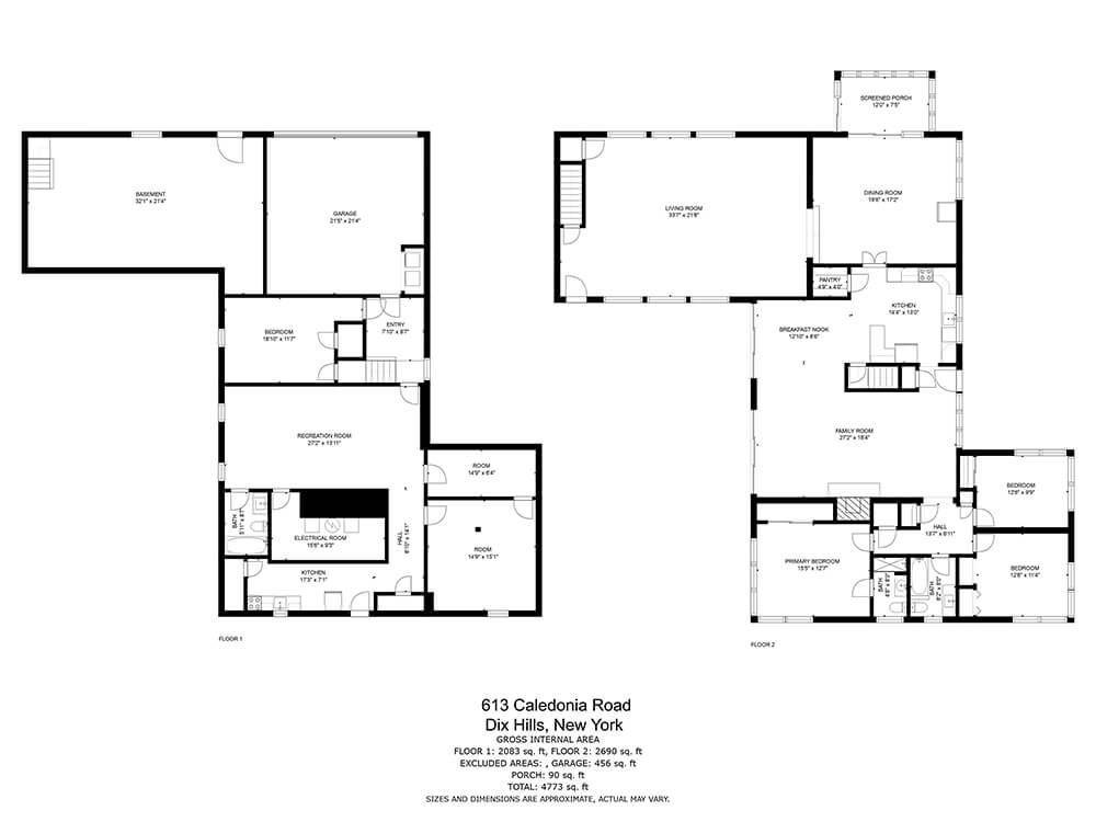
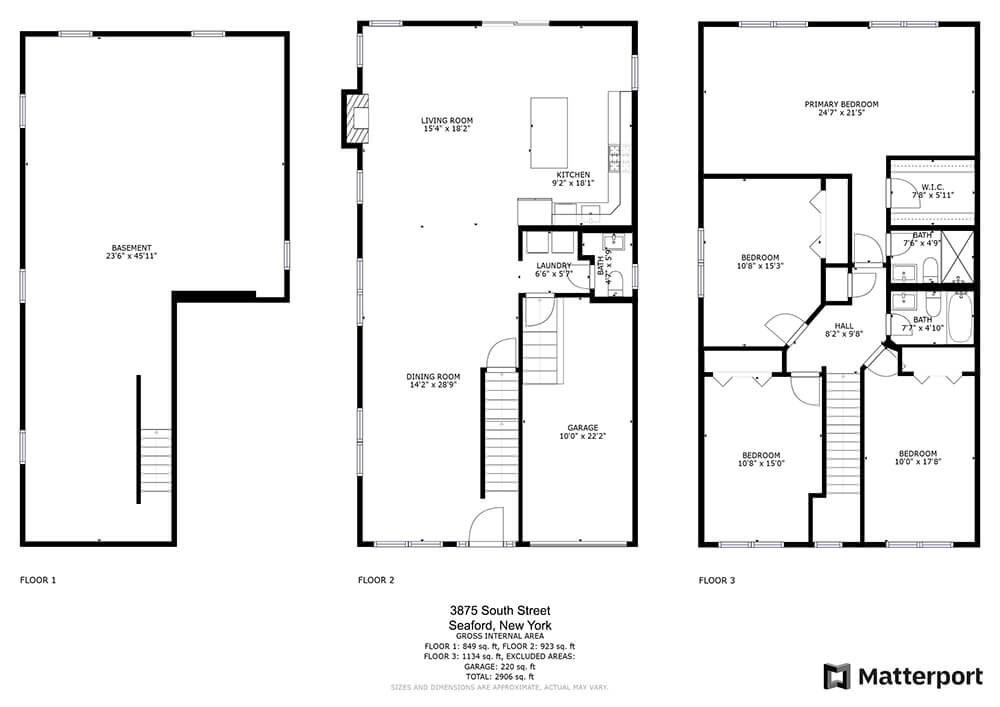
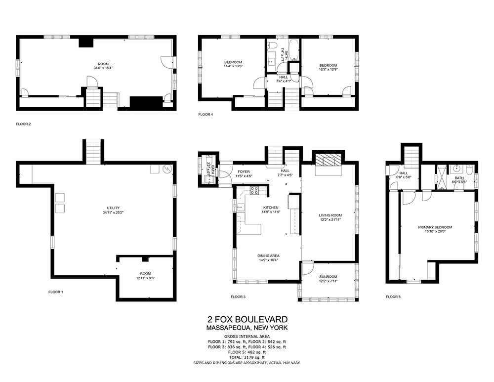
Floor Plans

Floor plans are the easiest way for a buyer or renter to understand the layout and flow of a property.

Floor plans can also help them plan how they will furnish their new home. We can provide you with a floor plan within 24 hours of your photo shoot. Floor plans may be made interactive with your virtual tour if desired.

Companies we do business with